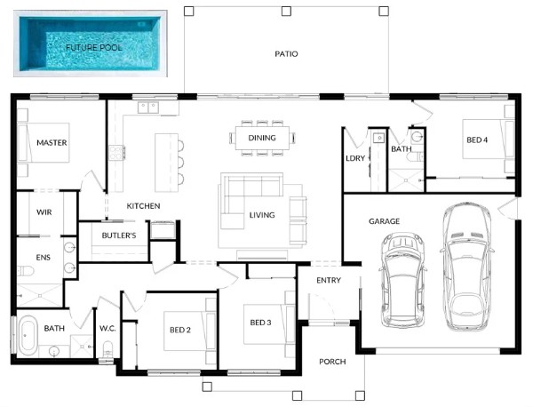
The Caspia 244 has been designed for wide blocks or acreage, this impressive home delivers space, style, and flexibility. A grand entry foyer leads into expansive open-plan living, complemented by four generous bedrooms and three well-appointed bathrooms. The thoughtfully separated fourth bedroom, complete with its own ensuite, is ideal for teenagers, guests, or multigenerational living. At the heart of the home, the large kitchen features a butler’s pantry and flows seamlessly to a spacious undercover alfresco, perfect for entertaining year-round. Additional storage in the garage enhances everyday practicality. This timeless design offers comfort, functionality, and room to grow—perfectly suited to meet your family’s needs for years to come.
Neater Homes has proudly been designing and constructing premium and luxury homes across Cairns, Port Douglas, the Tablelands, and as far south as Cardwell for over 40 years.


