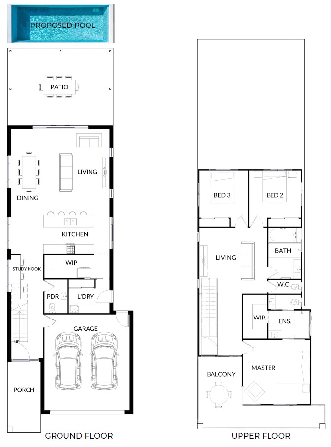
The Breakwater 290m2 is a smart, modern two-storey design created for narrow blocks without compromising on space or style. Enjoy open-plan living downstairs with a sleek kitchen and walk-in pantry, flowing seamlessly to a large alfresco perfect for entertaining and with room to add a swimming pool. Upstairs features three bedrooms, two bathrooms, a second living area and a front balcony, creating the ideal retreat for the whole family. With a study nook, powder room and clever zoning throughout, the Breakwater 290 delivers contemporary living at its best.
Neater Homes has proudly been designing and constructing premium and luxury homes across Cairns, Port Douglas, the Tablelands, and as far south as Cardwell for over 40 years.


